
GreenEvolution 76 MD (3 seals)
Choosing the right window material is essential for performance, durability, and design. Compare UPVC, aluminium, and steel window systems to find the best solution for your project in Indonesia.
GreenEvolution 76 MD (3 seals)






Window profile (frames):
Hardware:
Glazing:
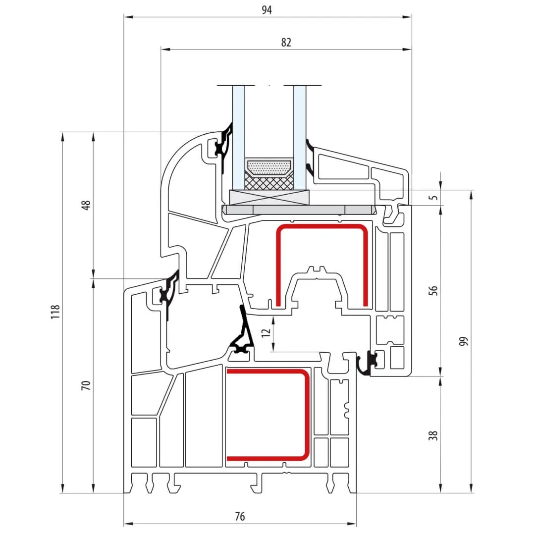
The GreenEvolution 76 MD Classic elevates performance further by integrating a central gasket (Mitteldichtung) system. With a 76 mm installation depth, this version is engineered for projects that demand superior insulation and maximum comfort.
GreenEvolution 76 MD also features top of the line Siegenia hardware, this combination is perfect for tropical homes that need additional energy efficiency and soundproofing.
Triple Glazing for Maximum Performance
The greenEvolution 76 MD supports high-performance triple glazing consisting of three panes separated by two insulating cavities. Combined with the central gasket system, this delivers:
- Significantly reduced energy loss
- Increased sound insulation
- Stable indoor temperatures
- Enhanced living comfort
The synergy between triple sealing and triple glazing creates a highly efficient window solution tailored for noise and energy-conscious developments in Indonesia.
Stability, Security & Precision Engineering
The system integrates premium hardware from Siegenia, ensuring advanced security and long-term mechanical reliability.
Optimized frame and sash combinations provide excellent structural strength while maintaining slim sightlines for maximum light intake.
As with all Salamander systems, state-of-the-art production technologies such as V-Perfect welding ensure nearly invisible corner joints, reinforcing the premium character of the finished window.
Triple Glazing for Maximum Performance
The greenEvolution 76 MD supports high-performance triple glazing consisting of three panes separated by two insulating cavities. Combined with the central gasket system, this delivers:
- Significantly reduced energy loss
- Increased sound insulation
- Stable indoor temperatures
- Enhanced living comfort
The synergy between triple sealing and triple glazing creates a highly efficient window solution tailored for noise and energy-conscious developments in Indonesia.
German Engineering for Tropical Conditions
Both greenEvolution 76 AD and 76 MD are designed to perform reliably in humid, high-UV, and heavy-rain environments. Their advanced sealing systems, stable multi-chamber profiles, and precision hardware make them ideal for:
- Premium residential projects
- Villas and townhouses
- High-end apartments
- Hotels and boutique developments
The choice between AD and MD depends on the required insulation level:
- AD: Excellent performance and cost-efficient premium solution
- MD: Enhanced thermal and acoustic insulation for higher efficiency targets
Both systems represent genuine German engineering — delivering measurable improvements in comfort, energy efficiency, and long-term property value for the Indonesian market.GreenEvolution 76 MD
UPVC Window colors and decors
































Plan your project with us.
Get professional advice on quality windows, soundproofing, glazing options, and other helpful information for your project in
Jakarta, Bali and all other locations in Indonesia – fast and with no obligation
UPVC Window profile sections
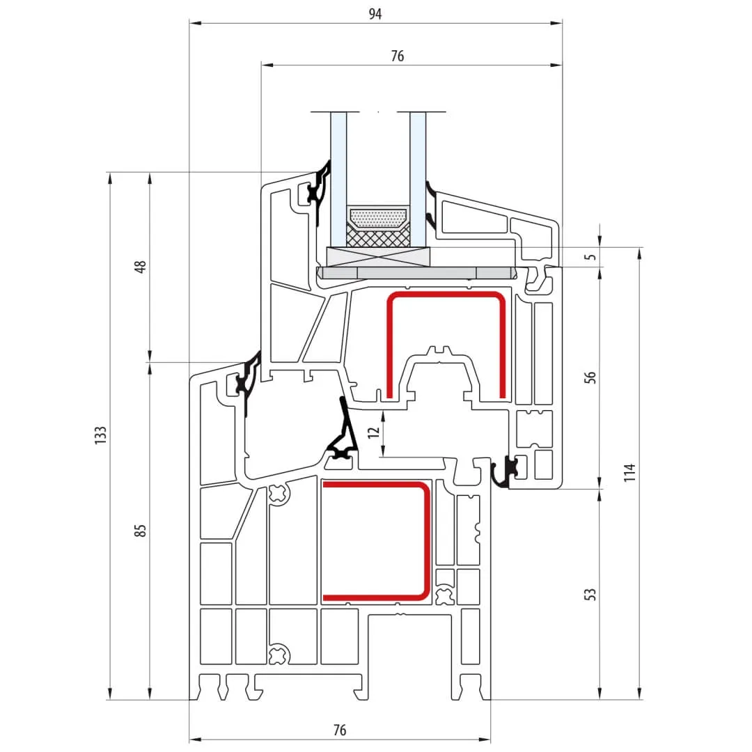
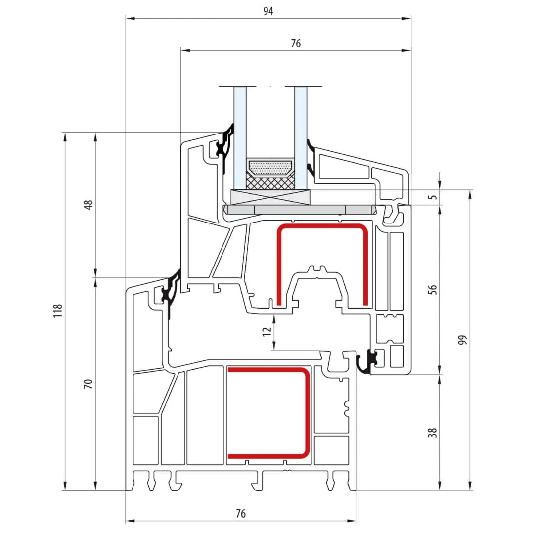
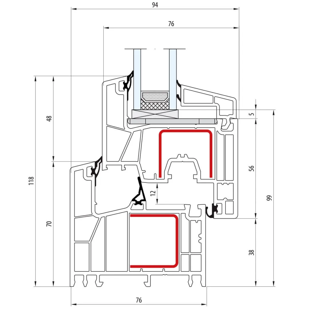
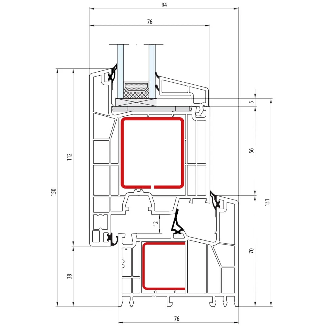
UPVC Window – GreenEvolution 76 MD (3 seals)

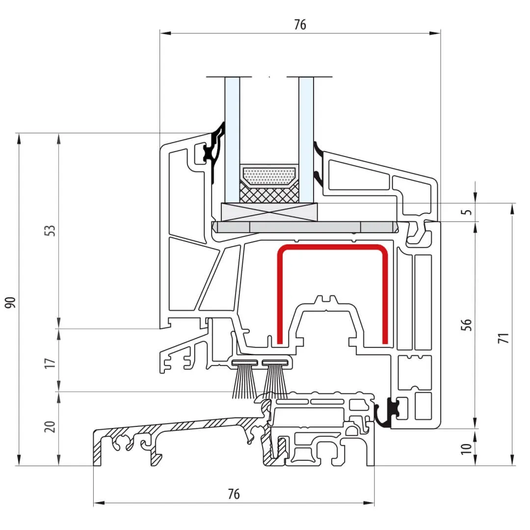
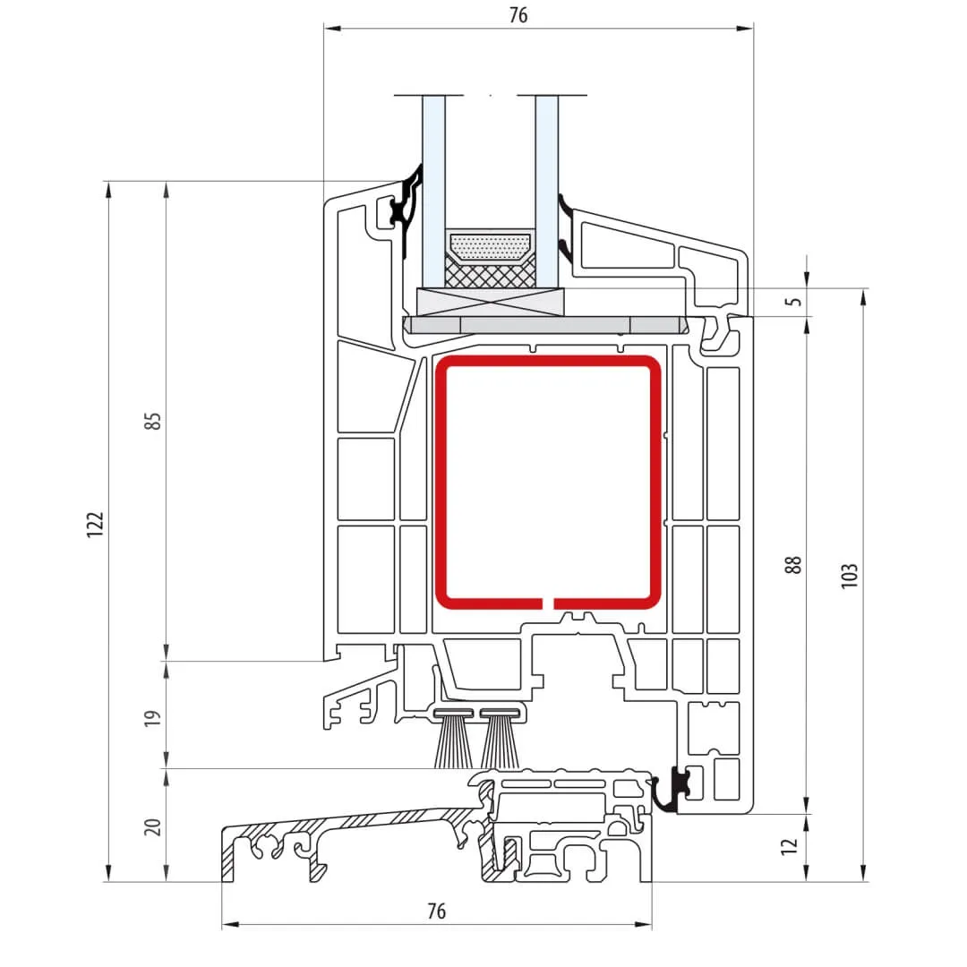
GreenEvolution 76 MD Fix 70mm 760004

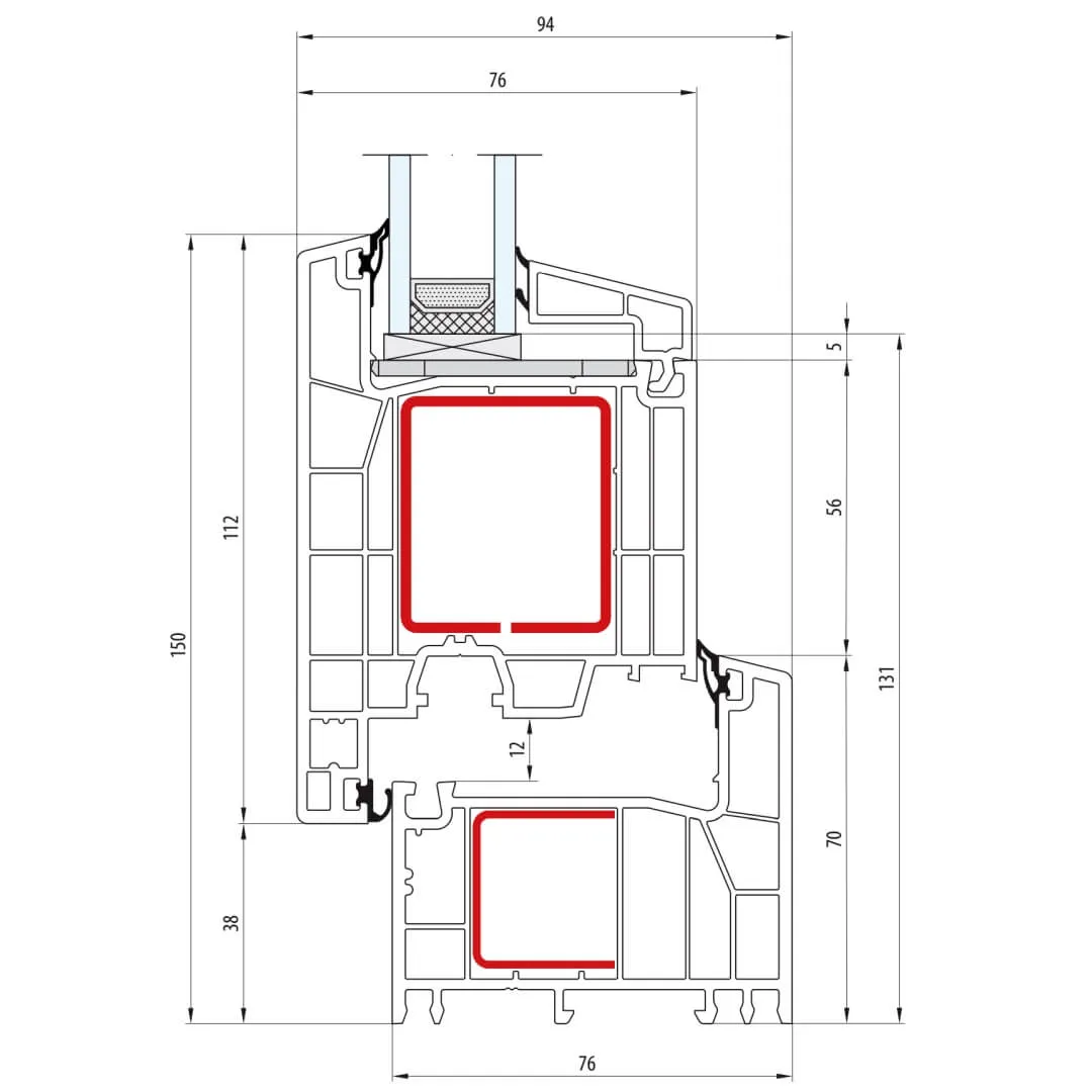
GreenEvolution 76 MD Window – Classic-Line 118mm – 760004 – 761002

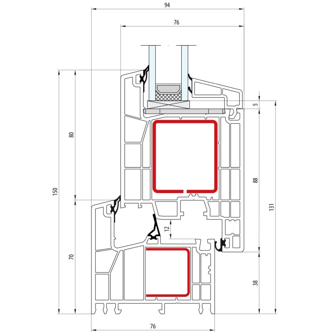
greenEvolution 76 MD Window – Round-Line 118mm – 760004 – 761004
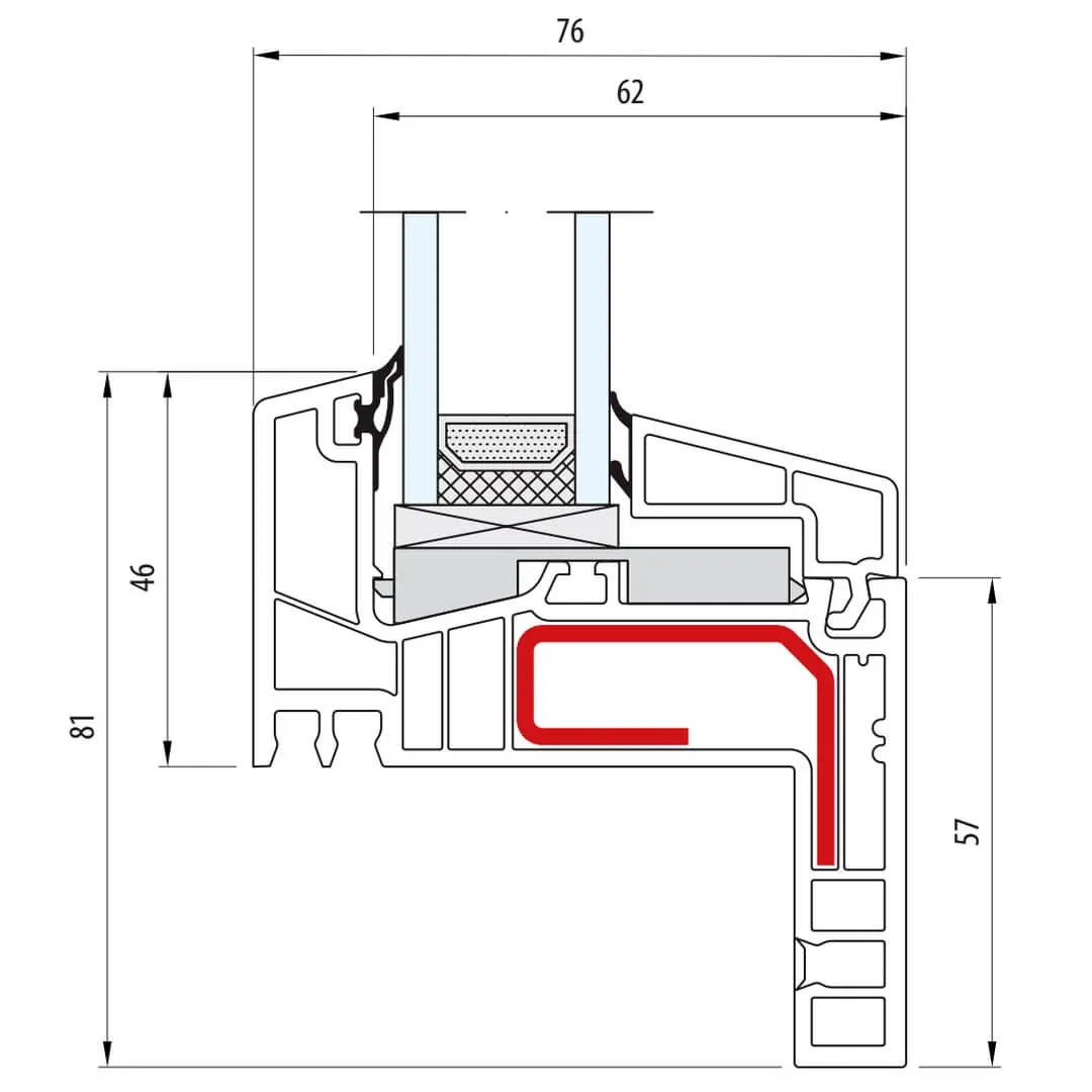
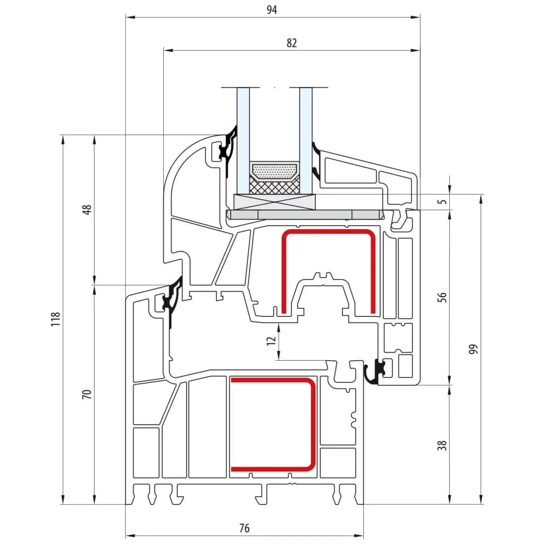
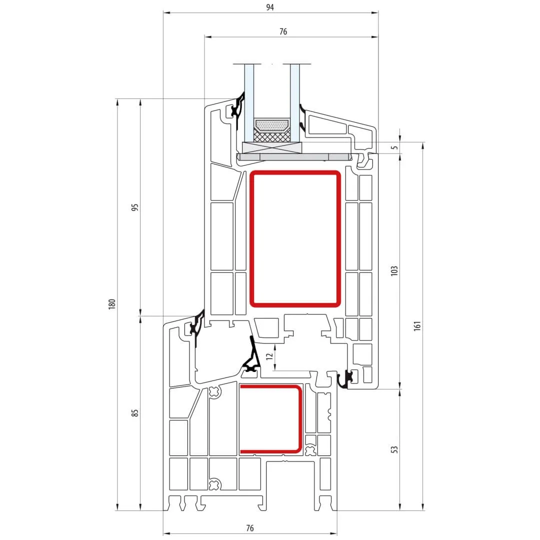
UPVC Window – GreenEvolution 76 with Renovation frame

GreenEvolution 76 MD Renovation frame fix 35 mm 760018

GreenEvolution 76 MD Renovation frame CL fin 35 mm – 760018 – 761002

GreenEvolution 76 MD Renovation frame RL fin 35 mm – 760018 – 761004

greenEvolution 76 MD Renovation frame fix 65 mm 760020

GreenEvolution 76 MD Renovation frame CL fin 65 mm – 760020 – 761002

GreenEvolution 76 MD Renovation frame RL fin 65 mm – 760020 – 761004
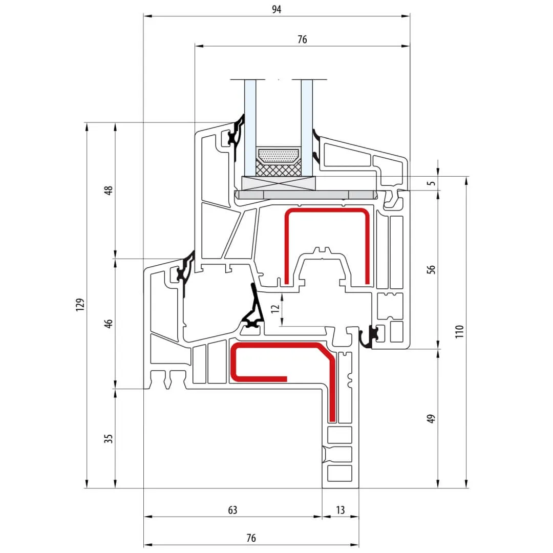
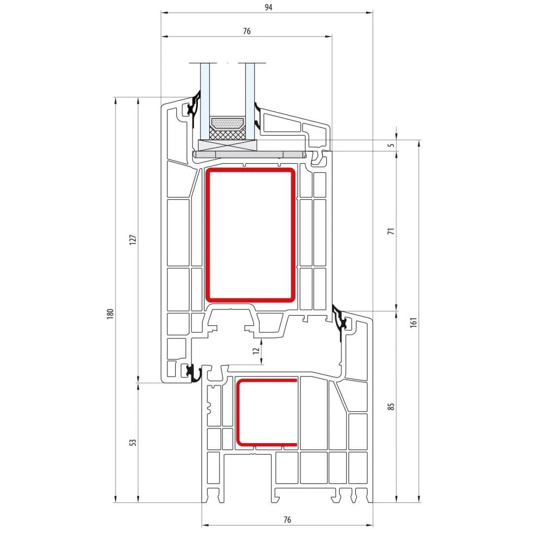
UPVC Window – GreenEvolution 76 MD with mullion 90mm (narrow)

GreenEvolution 76 MD Mullion 90mm – 762006

GreenEvolution 76 MD Mullion 90mm window CL – 762006 – 761002

GreenEvolution 76 MD Mullion 90mm window RL – 762006 – 761004
UPVC Window – GreenEvolution 76 MD with mullion 90mm (narrow, structural)

GreenEvolution 76 MD Mullion 90mm – 762008

GreenEvolution 76 MD Mullion 90mm window CL – 762008 – 761002

GreenEvolution 76 MD Mullion 90mm window RL – 762008 – 761004
UPVC Window – GreenEvolution 76 with stulp (casement) 70mm

GreenEvolution 76 Stulp 70mm window CL – 766004 – 761002

GreenEvolution 76 Stulp 70mm window RL – 766004 – 761004
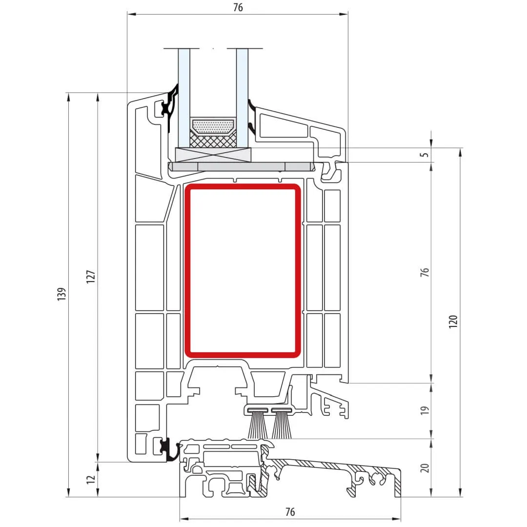
UPVC Terrace door – GreenEvolution 76

GreenEvolution 76 AD Terrace door CL – 760003 – 761002

GreenEvolution 76 MD Terrace door CL – 760004 – 761002

GreenEvolution 76 Terrace door – low threshold 20mm CL – 761002

GreenEvolution 76 AD Terrace door RL – 760003 – 761004

GreenEvolution 76 MD Terrace door RL – 760004 – 761004

GreenEvolution 76 Terrace door – low threshold 20mm RL – 761004
UPVC Terrace door – GreenEvolution 76 (112mm)

GreenEvolution 76 AD Terrace door open inside – 760003 – 761008

GreenEvolution 76 MD Terrace door open inside – 760004 – 761008

GreenEvolution 76 Terrace door open inside – low threshold 20mm – 761008

GreenEvolution 76 AD Terrace door open outside – 760003 – 761009

GreenEvolution 76 MD Terrace door open outside – 760004 – 761009

GreenEvolution 76 Terrace door open outside – low threshold 20mm – 761009
UPVC Entrance door – GreenEvolution 76

GreenEvolution 76 AD Door open inside – 760023 – 761014

GreenEvolution 76 MD Door open inside – 760012 – 761014

GreenEvolution 76 Door open inside – low threshold 20mm – 761014

GreenEvolution 76 AD Door open outside – 760023 – 761015

GreenEvolution 76 MD Door open outside – 760012 – 761015

GreenEvolution 76 Door open outside – low threshold 20mm außen öffnend – 761015
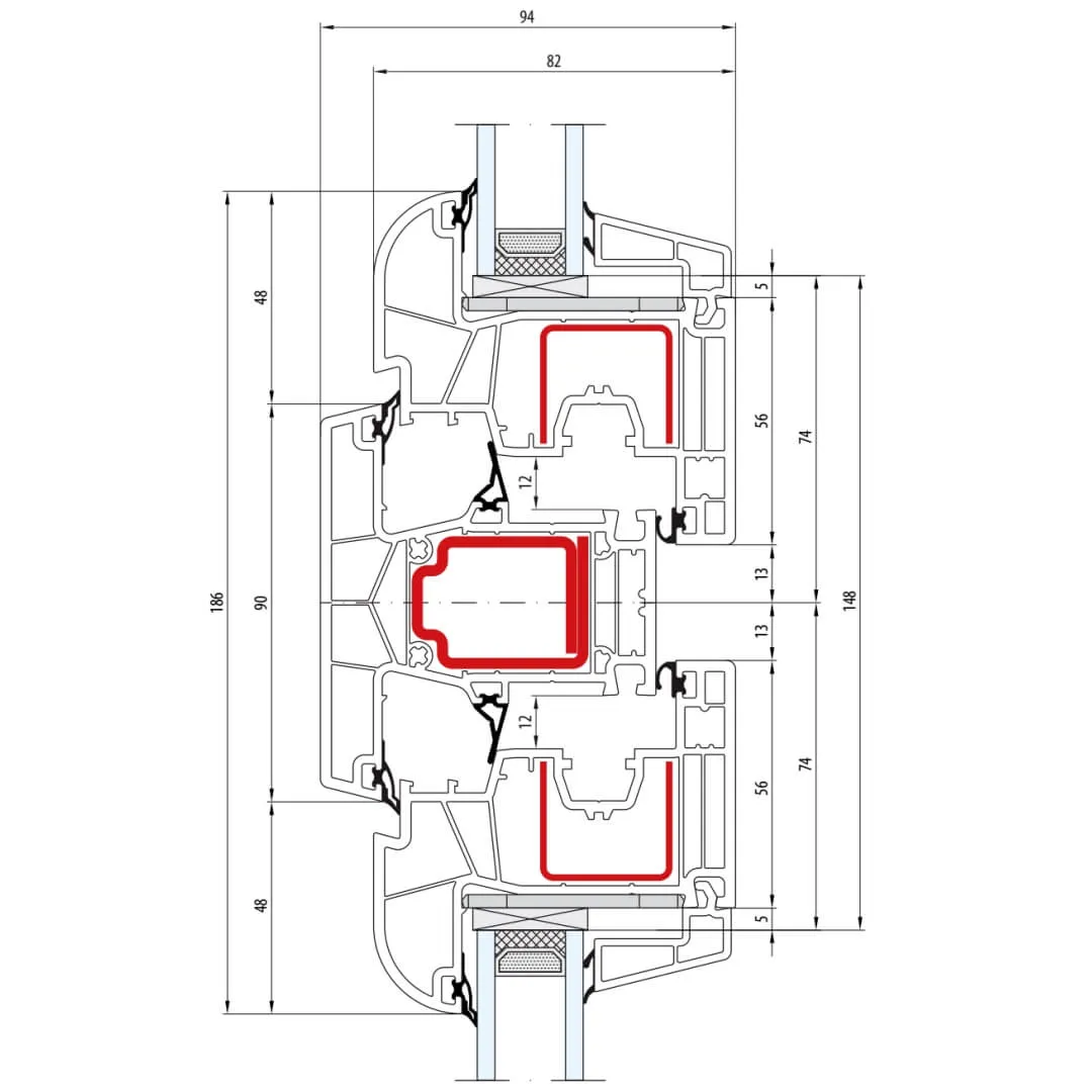
UPVC Entrance door – GreenEvolution 76 AD/MD with mullion (90mm)

GreenEvolution 76 MD Mullion 90mm – 762008

GreenEvolution 76 MD Mullion 90mm Door open inside – 762008 – 761014

GreenEvolution 76 MD Mullion 90mm Door open outside – 762008 – 761015
UPVC Entrance door – GreenEvolution 76 with Stulp 70mm

GreenEvolution 76 Stulp 70mm Door open inside – 766004 – 761014

GreenEvolution 76 Stulp 70mm Door open outside – 766004 – 761015
Universal UPVC profiles
Internal muntins (Helima)

Internal muntin 8mm

Internal muntin 18mm

Internal muntin 26mm

Internal muntin 45mm
Glue-on Muntins

416 302 – Glue-on muntin – 27mm

416 304 – Glue-on muntin – 45mm

416 306 – Glue-on muntin – 65mm
UPVC Glas dividing muntins – Transom – GreenEvolution 76

GreenEvolution 76 AD Transom 90mm – 762005

GreenEvolution 76 MD Transom 90mm – 762006

GreenEvolution 76 AD Transom 110mm – 762009
UPVC Transport-protector

416 106 – Protector – 30mm

416 100 – Protector – 40mm
UPVC Click-on profiles

406 105 Click-on profile 20mm

406 139 Click-on profile 30mm

406 140 Click-on profile 40mm
UPVC Window sill profiles

416 110 Click-on window sill 145mm

416 115 Click-on window sill 165mm

406 115 Click-on window sill 105mm
UPVC Frame extensions – GreenEvolution 76

416 160 Frame extension 20mm

416 163 Frame extension 30mm

416 167 Frame extension 40mm

416 170 Frame extension 60mm

416 176 Frame extension 100mm
UPVC Connectors – GreenEvolution 76

406 255 – H-Connector universal

416 260 – H-Connector

416 264 Structural connector 6mm

416 273 Structural connector 15mm

416 269 – 416 311 Structural connector
UPVC Corner connectors – GreenEvolution 76

416 210 Corner connector 90 degree

NP0160 – 416 251 Corner connector flexible

416 240 Corner connector 135 degrees
UPVC Cover profiles – GreenEvolution 76

Flat strip

Flat strip with seall

Chamber profile

UPVC Corner profile

UPVC Corner profile

UPVC Chamber corner profile
Roller-shutter rails – GreenEvolution 76

Roller-shutter rail 33mm

Roller-shutter rail 48mm

Roller-shutter rail 74mm
Kunststoff Weitere Profile – greenEvolution 76

406 670 UPVC chamber cover profile

406 316 Wide cover strip
Customization




Plan your project with us.
Get professional advice on quality windows, soundproofing, glazing options, and other helpful information for your project in
Jakarta, Bali and all other locations in Indonesia - fast and with no obligation